Portique treilli

Portique treilli

Messagepar marc » Lun Sep 12, 2022 9:46

Voila quelques mois que cette idee est en tete,j'aimerais attaque un portique de dechargement,construction treilli et avec benne preneuse.
C'est plutot un equipement portuaire,mais....
Voici quelques photos pour les idees...

mb-Precast-Gantry-Crane.jpg


Precast-Gantry-Crane-8==870x580.jpg


clamshell-grab-dredging-60.jpg


H5ea57101d8c04c0eaf04612f239c5b38e.jpg


pic2.jpg
pic2.jpg (10.02 Kio) Consulté 19472 fois
en tout cas on ne voit pas ça sur n importe quel forum ! ^^
Avatar de l’utilisateur
marc
 
Message(s) : 2772
Inscrit le : Jeu Juil 19, 2012 6:41
Localisation : Haute-Loire

Re: Portique treilli

Messagepar Papy » Lun Sep 12, 2022 11:51

Excellent sujet !

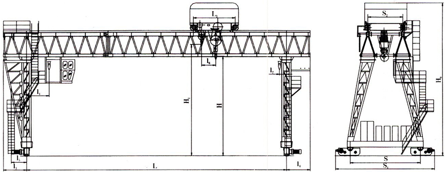
Ce genre de portique a tout à fait sa place dans un thème plus "terrestre".
On en trouve par exemple sur des gros chantiers de préfabrication béton (genre éléments de pont précontraint).

Pontrevoussoir.jpg


Ils peuvent alors être utilisés pour manutentionner les armatures, les coffrages, les bennes de béton, les pièces finies directement au crochet ou par l'intermédiaire de pinces, ou de palonniers.

Ils peuvent aussi être équipés d'une benne preneuse pour la mise en stock des granulats et le ravitaillement de la centrale à béton. Dans ce cas, elle est généralement accrochée au crochet de manutention, donc manœuvrée électro-hydrauliquement, et possède même parfois des batteries intégrées, avec sa propre télécommande.

Bref, plein d'heures de jeu en perspective !!!! (:o)




Avatar de l’utilisateur
Papy
 
Message(s) : 1318
Inscrit le : Ven Juil 20, 2012 2:39

Re: Portique treilli

Messagepar marc » Lun Sep 12, 2022 2:53

Merci Papy,tu me conforte dans mon idee.
Le but de mon topic etait surtout,d'avoir un avis general.
Avec cette reponse plus de doute. :super:
Bien sur il sera a l'echelle 1/10...
En gros 2M de long,et un petit metre de haut hors tout.
J'ai deja estime le metal necessaire:
14 barres de fer plat 20X3X2000
8 cornieres egales 30X30X2000
250 rivets tete ronde 2X15.
Budjet 260 E...
en tout cas on ne voit pas ça sur n importe quel forum ! ^^
Avatar de l’utilisateur
marc
 
Message(s) : 2772
Inscrit le : Jeu Juil 19, 2012 6:41
Localisation : Haute-Loire

Re: Portique treilli

Messagepar Nono25 » Lun Sep 12, 2022 7:23

Beau projet, ça vas être un sacré bestiaux

ça me fait beaucoup penser aux structures de scène

structure.png


ce qui est intéressant avec ces structure c'est surtout le système de montage

entretoise male.png


il permet de limiter les jeu (les pièces sont presque solidaire est surtout tienne très bien les contrainte mécanique)
Passionné de modélisme RC et de machines CNC,
Nono25
 
Message(s) : 130
Inscrit le : Mer Jan 21, 2015 12:47
Localisation : 25 Doubs

Re: Portique treilli

Messagepar marc » Lun Oct 24, 2022 12:08

Voila un peut d'avancement
Les cornieres tracees
20221022_112354.jpg

Percees
20221022_163638.jpg

Une idee avec les rivets
20221022_163902.jpg

Les 4 corniere percees
20221022_183744.jpg

Montage a blanc,"pour voir".
Pas de surprises,tout ce monte bien.
Pas de CN,pas d'ordi,une calculette et "Pythagore",Perce a 6,pour des rivets de 6.....
tout monte sur 2 metres de long.
Gustave serait content....
20221023_180718.jpg


20221023_180728.jpg
en tout cas on ne voit pas ça sur n importe quel forum ! ^^
Avatar de l’utilisateur
marc
 
Message(s) : 2772
Inscrit le : Jeu Juil 19, 2012 6:41
Localisation : Haute-Loire

Re: Portique treilli

Messagepar christopher » Lun Oct 24, 2022 1:39

si c est pas un beau projet :super:


hâte de voir avancement
Avatar de l’utilisateur
christopher
 
Message(s) : 2046
Inscrit le : Jeu Juil 19, 2012 6:15

Re: Portique treilli

Messagepar volvo A25 » Lun Oct 24, 2022 5:22

tu es un grand malade. :taré1: :taré1:
volvo A25
 
Message(s) : 2368
Inscrit le : Jeu Juil 19, 2012 9:20

Re: Portique treilli

Messagepar marc » Mer Oct 26, 2022 5:52

J'ai serti tout un cote.
Mais jouer du marteau,c'est bon pour d'autre.
J'ai modifier un burin sur mon perfo,lui ai fait une forme spherique pour la rivure...
20221026_160715[1].jpg

20221026_160842.jpg

20221026_161309.jpg

Ca marche pas mal,je me fait plus ch..r.Il faut etre feignant au boulot
en tout cas on ne voit pas ça sur n importe quel forum ! ^^
Avatar de l’utilisateur
marc
 
Message(s) : 2772
Inscrit le : Jeu Juil 19, 2012 6:41
Localisation : Haute-Loire

Re: Portique treilli

Messagepar marc » Mer Oct 26, 2022 5:55

Hier repos....
20221025_120535[1].jpg
en tout cas on ne voit pas ça sur n importe quel forum ! ^^
Avatar de l’utilisateur
marc
 
Message(s) : 2772
Inscrit le : Jeu Juil 19, 2012 6:41
Localisation : Haute-Loire

Re: Portique treilli

Messagepar marc » Jeu Oct 27, 2022 5:47

voici donc la partie porteuse
Elle est presentee a 90cms du sol,ca ne me plait pas.
Je pense positionner la partie basse a 70cms,Cela fait 7m a l'echelle (2m de long pour rappel)
20221027_174626.jpg

20221027_175100.jpg

20221027_175112.jpg

20221027_175137.jpg
en tout cas on ne voit pas ça sur n importe quel forum ! ^^
Avatar de l’utilisateur
marc
 
Message(s) : 2772
Inscrit le : Jeu Juil 19, 2012 6:41
Localisation : Haute-Loire

Suivant

Retour vers Divers / accessoires

Qui est en ligne ?

Utilisateur(s) parcourant ce forum : Aucun utilisateur inscrit et 0 invité(s)

x